| 価格 | 6,480万円 ![]() |
||||||
|---|---|---|---|---|---|---|---|
| 所在地 | 東京都練馬区石神井町7丁目
この地域周辺の物件を見る |
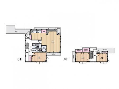
専有面積 | 95.56u | 間取り | 3LDK (-) | ||
| 交通 | 西武池袋線 石神井公園/徒歩14分
西武池袋線 大泉学園/徒歩18分 |
管理費等 | 3,000円 | 修繕積立金 | 17,000円 | 所在階/階数 | 3階/地上4階建 | 築年月 | 1990年9月築 | バルコニー面積 | - |
電話をかける(携帯・PHS可)
0120-530-077
「ホームページを見た」とお伝え下さい。
お問い合わせ番号をお伝えください
RHS-990964401
| 特徴 |
|
|---|---|
| セールスコメント |
| 採光面 | 東 | 取引態様 | 仲介 |
|---|---|---|---|
| 現況 | 空家 | 引渡し | 相談 |
| 総戸数 | 3戸 | 構造 | RC造 |
| テラス面積 | - | 専用庭面積 | - |
| 駐車場 | - | 駐輪場 | - |
| 建物権利 | - | 土地権利 | 所有権 |
| 用途地域 | 第一種中高層住居専用地域 - - | 管理態様 | 管理形態:自主管理 管理組合:- 管理会社:- |
| 小学校区 | () |
中学校区 | () |
| 情報更新日 | 2026年01月14日 | 次回更新日 | 2026年01月28日 |
電話をかける(携帯・PHS可)
0120-530-077
「ホームページを見た」とお伝え下さい。
お問い合わせ番号をお伝えください
RHS-990964401
| 年利率 | % |
||
|---|---|---|---|
| ボーナス払い | 返済年数 | ||
| 頭金 | 直接入力する | 万円 | |

毎月のご返済額 |
ボーナス(×年2回) |
物件価格6,480万円 |
電話でお問い合わせ
ME不動産埼京
|
電話をかける 0120-530-077 ※「ホームページを見た」とお伝えください。 |
お問い合わせ番号をお伝えください RHS-990964401 |
|---|
ご来店後にアンケートにお答え頂くと3,000円のQUOカードをプレゼント(1組様1回限り、後日郵送)