福岡中央 新築一戸建て|埼玉・東京・千葉の不動産のことならME不動産埼京

TEL0120-530-077

定休日:水曜 営業時間:9:00~

TOPページ >
物件検索 >
不動産情報一覧

福岡中央 新築一戸建ての検索結果一覧

種別で絞り込む
2件中1〜2件を表示

会員限定 【会員様限定で公開中!】

新築一戸建て

ご来店後にアンケートにお答え頂くと3,000円のQUOカードをプレゼント(1組様1回限り、後日郵送)

価格 5,480万円 
所在地 埼玉県ふじみ野市福岡中央2丁目
交通 東武東上線 ふじみ野駅 徒歩12分
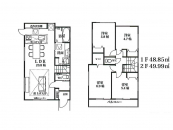
間取り 4LDK
建物面積 98.84u 土地面積 104.07u
築年月 2026年7月 建物構造 一戸建て/木造
11枚  


お客様へ

新築一戸建て 不動産情報はME不動産埼京にお任せください!ME不動産埼京では不動産情報を豊富にご用意しております。 新築戸建て・土地・マンションをお探しの方はぜひME不動産埼京までお問い合わせください。信頼あるスタッフがあなたのマイホーム探しのお手伝いをさせて頂きます。