レーベンリヴァーレスカイ・ザ・テラス|開放感溢れる最上階角部屋!ペット飼育可能・100平米以上の広々ルーフバルコニー付き | 埼玉・東京・千葉の不動産のことならME不動産埼京
ご成約済開放感溢れる最上階角部屋!ペット飼育可能・100平米以上の広々ルーフバルコニー付き
-
物件名 レーベンリヴァーレスカイ・ザ・テラス 種別 中古マンション 価格 3,180万円 周辺環境に恵まれた好立地♪お買物に便利な商業施設が近くにあるのはとても便利!小中学校も徒歩圏内にあるのでお子さまのいらっしゃる世帯も安心の住環境
三郷市立前谷小学校:徒歩8分
八潮市立前川中学校:徒歩18分
ゆたか幼稚園:徒歩9分
いなげや三郷戸ケ崎店:徒歩1分
ウェルパーク三郷戸ケ崎店:徒歩1分
セブンイレブン:徒歩6分
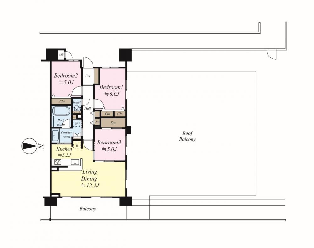
| 種別 | 中古マンション | 間取り | 3LDK |
|---|---|---|---|
| 交通 | つくばエクスプレス八潮駅 バス17分 戸ケ崎二丁目入口から徒歩3分 | 価格 | 3,180万円 |
| 所在地 | 埼玉県三郷市戸ケ崎2丁目 | 築年月 | 2012年05月築 |
| 土地面積/私道負担面積 | 延床面積 | 73.01㎡ | |
| 所在階/階数 | 12階 | バルコニー面積 | 15.21㎡ |
| 管理費及び修繕積立金 | 管理費12,800円/月、修繕積立金9,200円/月 | 管理方式 | 全部委託・日勤 |
| 地目 | 土地権利 | 所有権 | |
| 接道状況 | 構造 | RC造12階建て | |
| 建蔽率 | 容積率 | ||
| 建築確認番号 | 取引態様 | 専任媒介 | |
| その他備考 | |||
更新日・次回更新予定日:2025/7/12(次回更新予定日2025/7/26)
つくばエクスプレス八潮駅 バス17分 戸ケ崎二丁目入口から徒歩3分





















