グランディーナ|大型ショッピングモール「ウニクス伊奈」すぐそば!駅徒歩4分の好立地☆ | 埼玉・東京・千葉の不動産のことならME不動産埼京
ご成約済大型ショッピングモール「ウニクス伊奈」すぐそば!駅徒歩4分の好立地☆
-
物件名 グランディーナ 種別 中古マンション 価格 2,200万円 駅近キタ――(゚∀゚)――!!
すぐそばにショッピングモールがあるなんて、お買い物大好きな私には夢のよう…
キャンプ場も歩いて行けるし、憧れだったアウトドアを始めてみるチャンスかも♪
ワクワクするような新生活が待ってそうじゃない?
■「羽貫駅」徒歩4分
通勤通学や都心へのアクセスにも便利!
雨の日だって駅までもラクラク
■「ウニクス伊奈」徒歩1分
お店が充実!休日のショッピングも楽しみ♪
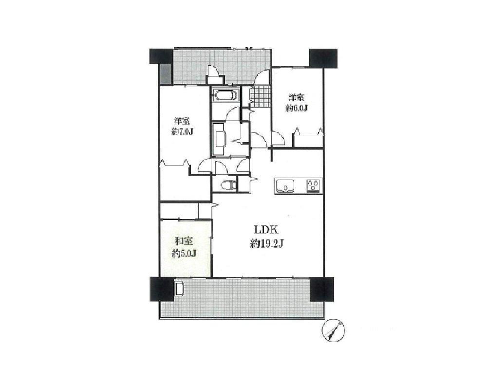
■全居室収納スペースあり
荷物が多くても安心!住空間が広く使えます
■南東向き19帖超のLDK
気持ちの良い太陽の光の下で寛げます
| 種別 | 中古マンション | 間取り | 3LDK |
|---|---|---|---|
| 交通 | 埼玉新都市交通伊奈線「羽貫」駅徒歩4分 | 価格 | 2,200万円 |
| 所在地 | 埼玉県北足立郡伊奈町学園2丁目 | 築年月 | 2007年11月 |
| 土地面積/私道負担面積 | 延床面積 | 83.44㎡ | |
| 所在階/階数 | 6階 | バルコニー面積 | 14.7㎡ |
| 管理費及び修繕積立金 | 管理費:10,905円/月、修繕積立金:14,700円/月 | 管理方式 | 全部委託・日勤 |
| 地目 | 土地権利 | 所有権 | |
| 接道状況 | 構造 | RC造14階建て | |
| 建蔽率 | 容積率 | ||
| 建築確認番号 | 取引態様 | 売主 | |
| その他備考 | |||
更新日・次回更新予定日:2020/2/16
埼玉新都市交通伊奈線「羽貫」駅徒歩4分

















