レーベンスクエア東鷲宮ブライトアリーナ|駅徒歩7分☆ペットと暮らせるオール電化マンション♪ | 埼玉・東京・千葉の不動産のことならME不動産埼京
ご成約済駅徒歩7分☆ペットと暮らせるオール電化マンション♪
-
物件名 レーベンスクエア東鷲宮ブライトアリーナ 種別 中古マンション 価格 2,580万円 総戸数263戸のビッグコミュニティ!新生活も怖くない!?(笑)
環境と家計に優しいオール電化がうれしい(*‘∀‘)
小さい子供がいても1階だから階下への音の心配もいらない♪
小学校も徒歩圏内!のびのび子育てができそうな環境だわ☆
■□■□■□■□■□■□■□■□■□■□
駅徒歩圏内のオール電化マンション
セカンドカーに便利な駐車場2台分完備
太陽の恵みが感じられる南向き住戸
ペットと共に快適新生活
■□■□■□■□■□■□■□■□■□■□
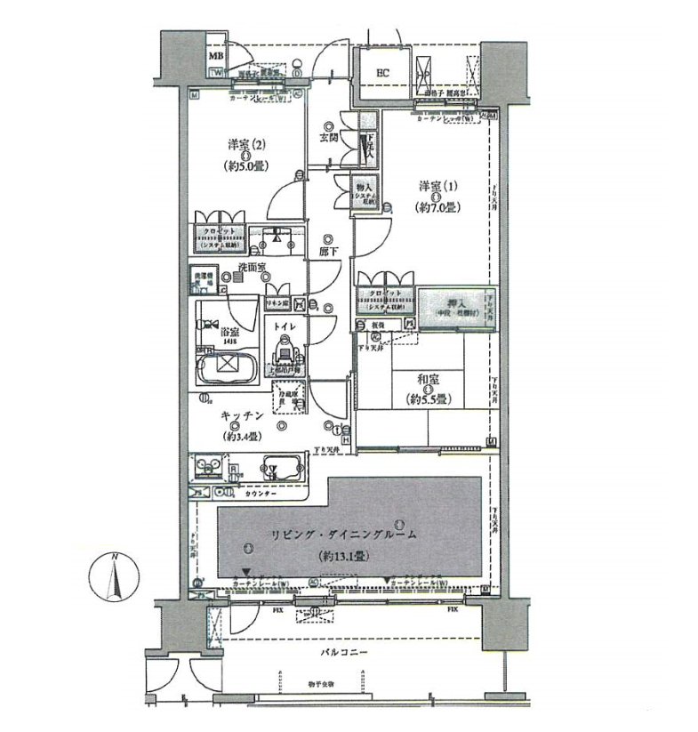
| 種別 | 中古マンション | 間取り | 3LDK |
|---|---|---|---|
| 交通 | JR宇都宮線「久喜」駅徒歩7分 | 価格 | 2,580万円 |
| 所在地 | 埼玉県久喜市桜田2丁目 | 築年月 | 2011年1月 |
| 土地面積/私道負担面積 | 延床面積 | 77.27㎡ | |
| 所在階/階数 | 1階 | バルコニー面積 | 13.22㎡ |
| 管理費及び修繕積立金 | 管理費12,400円/月、修繕積立金8,780円/月 | 管理方式 | 全部委託・日勤 |
| 地目 | 土地権利 | 所有権 | |
| 接道状況 | 構造 | RC造11階建て | |
| 建蔽率 | 60% | 容積率 | 200% |
| 建築確認番号 | 取引態様 | 専任媒介 | |
| その他備考 | |||
更新日・次回更新予定日:2020/4/27
JR宇都宮線「久喜」駅徒歩7分

















