イニシア川口フィールズ|周辺に生活施設充実!内装とてもキレイなオートロックマンション | 埼玉・東京・千葉の不動産のことならME不動産埼京
ご成約済周辺に生活施設充実!内装とてもキレイなオートロックマンション
-
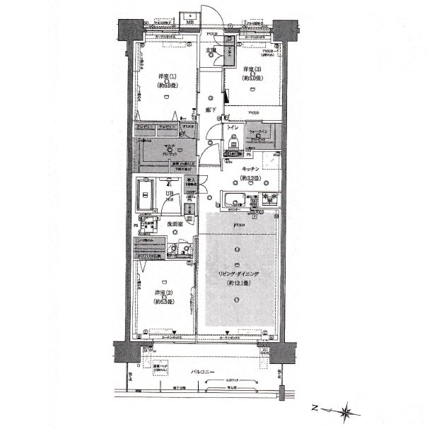
物件名 イニシア川口フィールズ 種別 中古マンション 価格 3,280万円 駅徒歩11分。スーパーやコンビニが徒歩圏内にあり便利!収納豊富な3LDK。ワンフロアでの生活が好きな我が家の永住邸にいいかも!
●2014年築のキレイなオートロックマンション
●収納力のあるウォークインクローゼット付き
●2部屋から出入り可能な奥行きのある広々バルコニー
・川口市立十二月田小学校 900m
・川口市立十二月田中学校 1100m
・川口市立朝日北保育所 333m
・川口市立あさひ保育所 824m
・ヤオコー川口朝日店 186m
・サミットストア川口青木店 410m
| 種別 | 中古マンション | 間取り | 3LDK |
|---|---|---|---|
| 交通 | 埼玉高速鉄道「南鳩ヶ谷」駅徒歩11分 | 価格 | 3,280万円 |
| 所在地 | 埼玉県川口市朝日2丁目 | 築年月 | 2014年4月 |
| 土地面積/私道負担面積 | 延床面積 | 75.03㎡ | |
| 所在階/階数 | 2階 | バルコニー面積 | 12.20㎡ |
| 管理費及び修繕積立金 | 管理費12,200円/月、修繕積立金8,800円/月 | 管理方式 | 全部委託・日勤 |
| 地目 | 土地権利 | 所有権 | |
| 接道状況 | 構造 | RC造7階建て | |
| 建蔽率 | 容積率 | ||
| 建築確認番号 | 取引態様 | 専任媒介 | |
| その他備考 | |||
更新日・次回更新予定日:2021/7/29
埼玉高速鉄道「南鳩ヶ谷」駅徒歩11分




















