さいたま市岩槻区上野1丁目 中古戸建|住環境良好!グルニエ付きゆとりの4LDK☆ | 埼玉・東京・千葉の不動産のことならME不動産埼京
ご成約済住環境良好!グルニエ付きゆとりの4LDK☆
-
物件名 さいたま市岩槻区上野1丁目 中古戸建 種別 中古戸建 価格 1,600万円 玄関からすぐに洗面室へ。どろんこのお子様やお仕事帰りで汗だくな時に便利な間取りのお家です!バルコニーが2面あるのも嬉しいポイント♪
●スーパーやコンビニなど徒歩圏内にお買物施設が充実
●グルニエ付きの4LDK
●動線を考えた2WAYキッチン
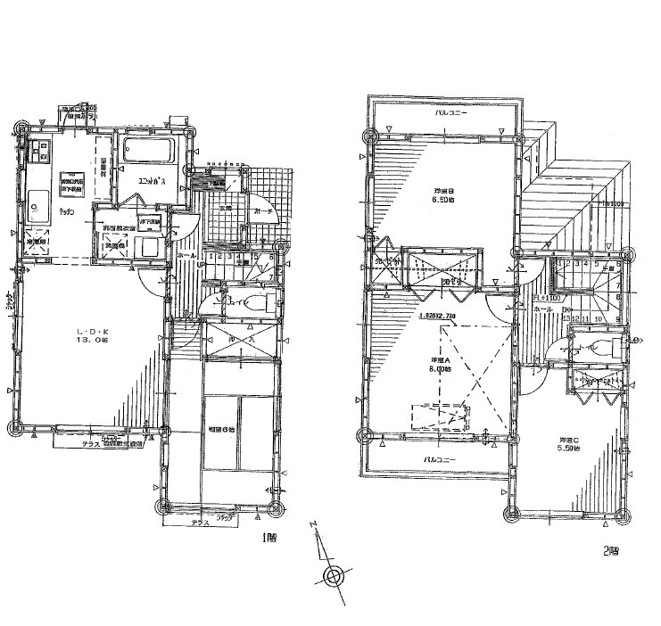
| 種別 | 中古戸建 | 間取り | 4LDK |
|---|---|---|---|
| 交通 | 東武野田線「東岩槻」駅徒歩19分 | 価格 | 1,600万円 |
| 所在地 | 埼玉県さいたま市岩槻区上野1丁目 | 築年月 | 2004年4月 |
| 土地面積/私道負担面積 | 115.23㎡ | 延床面積 | 91.49㎡ |
| 所在階/階数 | バルコニー面積 | ||
| 管理費及び修繕積立金 | 管理方式 | ||
| 地目 | 宅地 | 土地権利 | 所有権 |
| 接道状況 | 北側公道6m | 構造 | 木造2階建 |
| 建蔽率 | 50% | 容積率 | 80% |
| 建築確認番号 | 取引態様 | 専任媒介 | |
| その他備考 | |||
更新日・次回更新予定日:2021/10/28
東武野田線「東岩槻」駅徒歩19分




















