ライオンズガーデン東大宮壱番館|ハレノテラス至近の好立地!専用庭のある3LDKマンション♪ | 埼玉・東京・千葉の不動産のことならME不動産埼京
ご成約済ハレノテラス至近の好立地!専用庭のある3LDKマンション♪
-
物件名 ライオンズガーデン東大宮壱番館 種別 中古マンション 価格 2,100万円 駅徒歩16分、買い物施設が周辺に充実の地に大規模コミュニティ☆小学校徒歩4分でお子様の通学も安心!快適なペットとの暮らしを是非ここで(*‘∀‘)
●1990年築♪陽光降りそそぐ南向き1階住戸で階下を気にせず新生活
●収納豊富な住まいで室内大変キレイです!
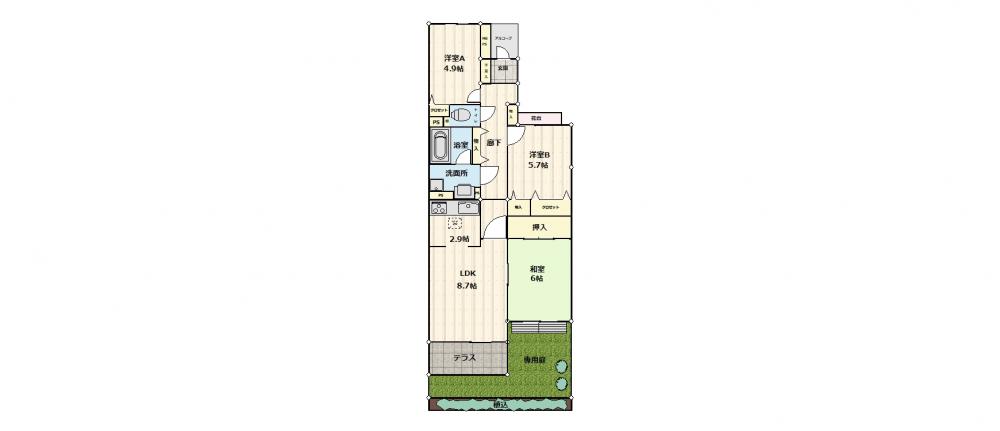
| 種別 | 中古マンション | 間取り | 3LDK |
|---|---|---|---|
| 交通 | JR宇都宮線「東大宮」駅徒歩16分 | 価格 | 2,100万円 |
| 所在地 | 埼玉県さいたま市見沼区島町 | 築年月 | 1990年6月 |
| 土地面積/私道負担面積 | 延床面積 | 71.19㎡ | |
| 所在階/階数 | 1階 | バルコニー面積 | |
| 管理費及び修繕積立金 | 管理費12,070円/月、修繕積立金18,020円/月 | 管理方式 | 全部委託・日勤 |
| 地目 | 土地権利 | 所有権 | |
| 接道状況 | 構造 | RC造8階建て | |
| 建蔽率 | 容積率 | ||
| 建築確認番号 | 取引態様 | 専任媒介 | |
| その他備考 | |||
更新日・次回更新予定日:2022/2/1
JR宇都宮線「東大宮」駅徒歩16分






















