川口市前川2丁目 中古戸建|2014年築、太陽の光をたっぷり享受する南向きの住まい | 埼玉・東京・千葉の不動産のことならME不動産埼京
ご成約済2014年築、太陽の光をたっぷり享受する南向きの住まい
-
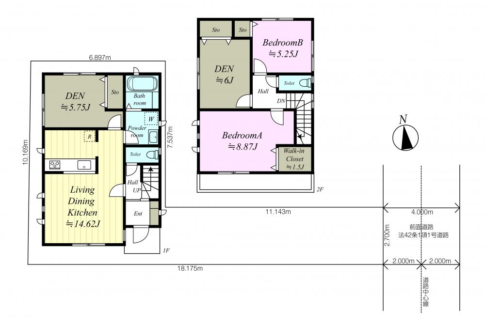
物件名 川口市前川2丁目 中古戸建 種別 中古戸建 価格 2,980万円 イオンモールが生活圏にあるとても便利な立地☆小中学校も近く子育て家族も安心♪たっぷりの収納力のある室内、とてもキレイにお使いです!
●住環境良好!2014年築4LDK
●小中学校が近く子育て家族も安心の立地
●駐車2台可でセカンドカーや来客用に便利
●便利な浴室乾燥機付き
| 種別 | 中古戸建 | 間取り | 4LDK |
|---|---|---|---|
| 交通 | JR京浜東北線「蕨」駅バス16分「前川二丁目」停徒歩2分 | 価格 | 2,980万円 |
| 所在地 | 埼玉県川口市前川2丁目 | 築年月 | 2014年7月 |
| 土地面積/私道負担面積 | 101.31㎡ | 延床面積 | 93.14㎡ |
| 所在階/階数 | バルコニー面積 | ||
| 管理費及び修繕積立金 | 管理方式 | ||
| 地目 | 宅地 | 土地権利 | 所有権 |
| 接道状況 | 東側公道3m | 構造 | 木造2階建 |
| 建蔽率 | 60% | 容積率 | 200% |
| 建築確認番号 | 取引態様 | 専任媒介 | |
| その他備考 | |||
更新日・次回更新予定日:2022/6/12
JR京浜東北線「蕨」駅バス16分「前川二丁目」停徒歩2分

















