| 価格 | 3,280万円値下がり ![]() |
||||
|---|---|---|---|---|---|
| 所在地 | 埼玉県所沢市荒幡
この地域周辺の物件を見る |
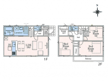
土地面積 | 114.17m² (34.54坪) | 建物面積 | 87.48u |
| 築年月 | 新築 2026年築 | 間取り | 3LDK (-) | ||
| 交通 |
西武池袋線 西所沢/徒歩16分
西武狭山線 西所沢/徒歩16分 |
||||
電話をかける(携帯・PHS可)
0120-530-077
「ホームページを見た」とお伝え下さい。
お問い合わせ番号をお伝えください
RHS-990988045
| 特徴 |
|
|---|---|
| セールスコメント |
| 採光面 | - | 構造/階数 | 木造/地上2階建 |
|---|---|---|---|
| 建ぺい率 | 50(%) | 容積率 | 80(%) |
| 駐車場 | 有 | 現況/引渡し | 空家/即時 |
| 土地権利 | 所有権 | 私道負担面積 | - |
| 接道状況 | 接道: 東 11.1m 公道 道路幅: 2.9m | 用途地域 | 第一種低層住居専用地域
|
| セットバック | なし | 法令上の制限 | セットバック部分持分あり(13.26平米×1/1) |
| 地目 | 宅地 | 地勢 | |
| 建築確認番号 | 第25UDI1W建06760号 | 都市計画 | 市街化区域 |
| 小学校区 | 所沢市立荒幡小学校 (埼玉県所沢市) この学区の他の物件を見る |
中学校区 | 山口中学校 (埼玉県所沢市) この学区の他の物件を見る |
| 取引態様 | 仲介 | ||
| 情報更新日 | 2026年05月01日 | 次回更新日 | 2026年05月15日 |
電話をかける(携帯・PHS可)
0120-530-077
「ホームページを見た」とお伝え下さい。
お問い合わせ番号をお伝えください
RHS-990988045
| 年利率 | % |
||
|---|---|---|---|
| ボーナス払い | 返済年数 | ||
| 頭金 | 直接入力する | 万円 | |

毎月のご返済額 |
ボーナス(×年2回) |
物件価格3,280万円 |
電話でお問い合わせ
ME不動産埼京
|
電話をかける 0120-530-077 ※「ホームページを見た」とお伝えください。 |
お問い合わせ番号をお伝えください RHS-990988045 |
|---|
ご来店後にアンケートにお答え頂くと3,000円のQUOカードをプレゼント(1組様1回限り、後日郵送)