| 価格 | 2,790万円 ![]() |
||||
|---|---|---|---|---|---|
| 所在地 | 埼玉県川越市菅間
この地域周辺の物件を見る |
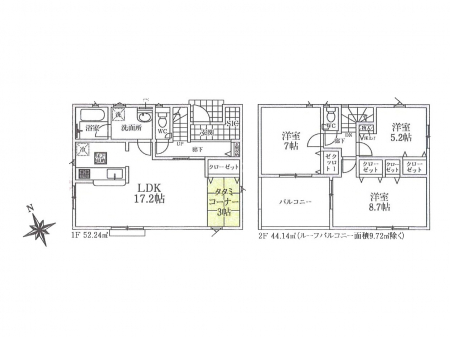
土地面積 | 200.26m² (60.58坪) | 建物面積 | 96.38u |
| 築年月 | 新築 2026年築 | 間取り | 3LDK (-) | ||
| 交通 |
西武新宿線 本川越/徒歩63分
東武東上線 川越市/徒歩65分 |
||||
電話をかける(携帯・PHS可)
0120-530-077
「ホームページを見た」とお伝え下さい。
お問い合わせ番号をお伝えください
RHS-991002901
| 特徴 |
|
|---|---|
| セールスコメント | 都市計画:市街化調整区域(建築許可:開発許可等による分譲地内) |
| 採光面 | - | 構造/階数 | 木造/地上2階建 |
|---|---|---|---|
| 建ぺい率 | 60(%) | 容積率 | 200(%) |
| 駐車場 | 有 | 現況/引渡し | -/2026年6月上旬 |
| 土地権利 | 所有権 | 私道負担面積 | - |
| 接道状況 | 接道: 北 10.2m 公道 道路幅: 6.2m | 用途地域 | 指定なし
|
| セットバック | なし | 法令上の制限 | - |
| 地目 | 宅地 | 地勢 | 平坦 |
| 建築確認番号 | 第KBI-SGM25-10-5798号 | 都市計画 | 市街化調整区域 |
| 小学校区 | 川越市立芳野小学校 (埼玉県川越市) この学区の他の物件を見る |
中学校区 | 芳野中学校 (埼玉県川越市) この学区の他の物件を見る |
| 取引態様 | 仲介 | ||
| 情報更新日 | 2026年05月30日 | 次回更新日 | 2026年06月13日 |
電話をかける(携帯・PHS可)
0120-530-077
「ホームページを見た」とお伝え下さい。
お問い合わせ番号をお伝えください
RHS-991002901
| 年利率 | % |
||
|---|---|---|---|
| ボーナス払い | 返済年数 | ||
| 頭金 | 直接入力する | 万円 | |

毎月のご返済額 |
ボーナス(×年2回) |
物件価格2,790万円 |
電話でお問い合わせ
ME不動産埼京
|
電話をかける 0120-530-077 ※「ホームページを見た」とお伝えください。 |
お問い合わせ番号をお伝えください RHS-991002901 |
|---|
ご来店後にアンケートにお答え頂くと3,000円のQUOカードをプレゼント(1組様1回限り、後日郵送)